Auction
Share

Architecture Design Surveyor Home Remodel ADU Build Bathroom, Kitchen

Price: $10
Views 127883
06.01.2026
Owner
Price: $10 -06.01.2026
Views 127883

Bids:
Views 127883
06.01.2026
No Results Found !

Services and equipment

Details

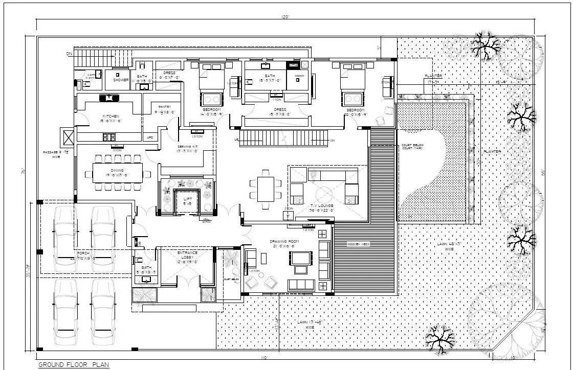
QR Code Link to This Post We are a full service architectural design company with more than 13 years of Residential/Commercial experience.  We do field survey work, identify property lines, create as-built, conceptual and space design drawings for your property; measuring/recording everything needed. Looking to buy land but not sure what you can build there? Need to put a fence up or divide your lot space? Developing your lot space? Kitchen needs remodeling? Renovate or add another room to your house? Need to change your commercial building use? We provide top quality designs for your remodel or your lot space and will encompass your visions into perfectly scaled space plan drawings.  We also prepare your plans for city approval and will provide you with assurance passing all inspections required at every step of the project.  From bathroom remodels to high rise buildings we have planned and prepared drawings for those and everything in between.  We provide work orders and tracking sheets to keep your project on or under budget and within any necessary time schedules. Adu builds or garage conversions are welcome as we provide you the opportunity to convert your property into a city approved legal rentable space.  We also provide usable square footage calculations for building leasing used to price tenant/suite space.  Drawings within 7 days (depending on scope and square footage of project). Quality Drawings. Quote within 24 hours. Fast Turnaround.  Excellent prices.  (909) 906 - 3437 PROPERTIES WE SERVE: •  Single Family Residence •  Multi Family •  Parcel development •  Apartments •  Office Spaces •  Galleries •  Commercial Buildings •  High Rise Buildings •  Warehouse PRODUCT DELIVERY •  Physical Printed Drawings •  Pdf Documents •  CAD Files •  3D Renders •  Revit Files SERVICE AREAS •  LOS ANGELES COUNTY •  ORANGE COUNTY •  RIVERSIDE COUNTY •  SAN BERNARDINO COUNTY •  SAN DIEGO COUNTY •  VENTURA COUNTY WE PROVIDE THE FOLLOWING DRAWING TYPES •   Plot Plans •   As-Built Plans •   Water Drainage Elevation Plans •   Architectural Design - Conceptual Plans •   Space Plans •   Interior/Exterior Elevations (per client approval) •   Constructions Documents for city approval Site Plan Demolition Plan(s) Floor Plan(s) Electrical Plan(s) Reflected Ceiling Plans(s) Sectional Details and Elevations Egress Plan(s) Accurate Drawings for permit approval Fast Turnaround Tell us your exact needs and we will provide a custom quote. Available to Schedule 7 days / week. M.G.  Design GET YOUR PROPERTY AS-BUILT DRAWINGS QUICK AND ACCURATE. Call for a QUOTE - (909) 906 - 3437 ------------------------------------------------------------------------------------------------------------------------------------------------------------------ Related keywords: Construction drawings , floor plans , home plans and design , remodel , tenant improvement , garage addition , custom house plans , building plans , permits , drafter, draftsperson draftsman, drawing, drawings room addition , home addition , CAD drawings , mechanical , room addition , kitchen remodeling , bathroom remodeling , rendering, renderings, renovation residential, room addition, sections, sketches , cad addition , plans , asbuilt, as-built, addition , blueprints , blue prints , remodel, plans, permits, autocad, construction documents , engineering , 3d rendering

Seller

Roselyn

Owner

On website since. 2024

Price: $10

Texas, Red Oak

Reviews
0 reviews
 
Anunturi similare
Auction
2016 Bobcat E32 Mini Excavator
Owner

Acalanes Ridge - 04.01.2026

$32500
Auction
NEW - Werner Double Wide Aluminum Scaffo...
Owner

Acalanes Ridge - 04.01.2026

$2050
Auction
2015 ballymore scissor lift
Owner

Acalanes Ridge - 04.01.2026

$2800
Auction
2017 Bobcat T740
Owner

Acalanes Ridge - 04.01.2026

$43500
//
This website is owned by
www.zappinvestment.com
World's AI Investment Fund